Skip To Content

7525 Ibis Drive

Lakeland, FL 33810
  • $285,000
  • STATUS: Pending
  • ON SITE: 111 Days
  • MLS #: L4957341
Pending
UPDATED: 44 min ago
$285,000
  • 4
    BEDS
  • 0.14
    ACRES
  • 2
    BATHS
  • 0
    1/2 BATHS
  • 1,707
    SQFT
  • $167
    $/SQFT
Neighborhood:
Type:
Single-Family Home
Built:
2021
County:
Area:

School Information

Elementary School:
Middle School:
High School:

Description

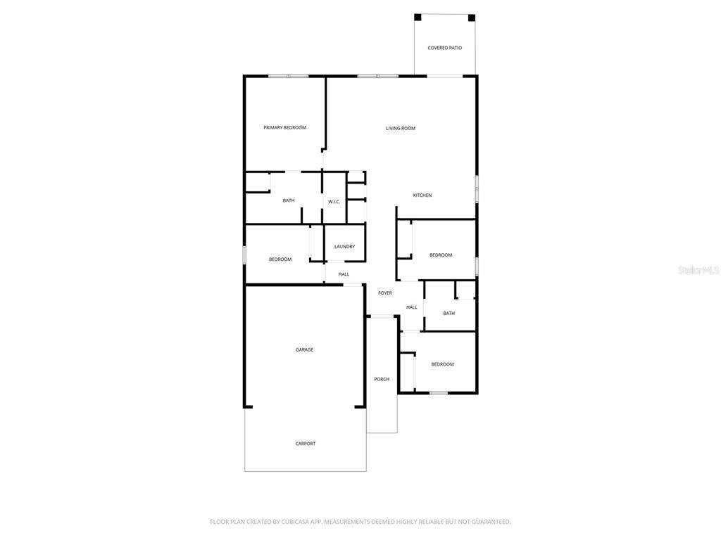
Under contract-accepting backup offers. Welcome to your 4 bedroom, 2 bathroom home with a FULLY fenced in backyard located in a quiet community with easy access to dining, shopping, and major roadways! Arriving at the home, you’ll find a landscaped yard and stone accents on the front of the home. Entering the home, you’ll find LVP flooring and a bright and open living area with plenty of natural light and a feature wall in the living room. The spacious open kitchen features a large island, granite countertops, and plenty of cabinet and countertop space. The primary bedroom, located at the back of the home for additional privacy, is generously sized with carpeted flooring and features an en-suite bathroom with a dual sink vanity, walk-in shower with tile surround and a spacious walk-in closet. The remaining bedrooms offer plenty of space and share the main hall bathroom with a single sink vanity with a large countertop space, a tub/shower combo, and a linen closet. The home also features an indoor laundry room. Stepping through your sliding doors you’ll find a covered patio and a fully fenced in yard with plenty of space for entertaining. This home is move in ready, schedule your private showing today! Seller's loan is assumable at a 3.375% interest rate.

Monthly Payment Calculator




© 2026 My Florida Regional MLS DBA Stellar MLS. All rights reserved. All listings displayed pursuant to IDX. All listing information is deemed reliable but not guaranteed and should be independently verified through personal inspection by appropriate professionals. Listings displayed on this website may be subject to prior sale or removal from sale; availability of any listing should always be independently verified. Listing information is provided for consumers personal, non-commercial use, solely to identify potential properties for potential purchase; all other use is strictly prohibited and may violate relevant federal and state law. Data last updated 2026-03-11T10:51:30.343.
www.searchingfloridaproperties.com/homes/170222150
Print Image

7525 Ibis Drive Lakeland, FL 33810

  • Price: $285,000
  • Status: Pending
  • On Site: 111 Days
  • Updated: 44 min ago
  • MLS #: L4957341
4
Beds
2
Baths
0
½ Baths
0.14
Acres
1,707
SQFT
$167
$/SQFT
2021
Built
Neighborhood:
Cayden Reserve Ph 2
County:
Polk
Area:
Lakeland
Elementary School:
R. Clem Churchwell Elem
Middle School:
Sleepy Hill Middle
High School:
Kathleen High
Property Description
Under contract-accepting backup offers. Welcome to your 4 bedroom, 2 bathroom home with a FULLY fenced in backyard located in a quiet community with easy access to dining, shopping, and major roadways! Arriving at the home, you’ll find a landscaped yard and stone accents on the front of the home. Entering the home, you’ll find LVP flooring and a bright and open living area with plenty of natural light and a feature wall in the living room. The spacious open kitchen features a large island, granite countertops, and plenty of cabinet and countertop space. The primary bedroom, located at the back of the home for additional privacy, is generously sized with carpeted flooring and features an en-suite bathroom with a dual sink vanity, walk-in shower with tile surround and a spacious walk-in closet. The remaining bedrooms offer plenty of space and share the main hall bathroom with a single sink vanity with a large countertop space, a tub/shower combo, and a linen closet. The home also features an indoor laundry room. Stepping through your sliding doors you’ll find a covered patio and a fully fenced in yard with plenty of space for entertaining. This home is move in ready, schedule your private showing today! Seller's loan is assumable at a 3.375% interest rate.
Exterior Features

Attached Garage Yn Yes Carport Yn No Construction Materials Block Covered Spaces 2 Direction Faces East Exterior Features Irrigation SystemLighting Foundation Details Slab Lot Features Landscaped Pool Private Yn No Road Frontage Type Street Paved Road Surface Type Paved Roof Shingle Water Access Yn No Water Extras Yn No Water View Yn No Waterfront Feet Total 0 Waterfront Yn No

Interior Features

Appliances DishwasherElectric Water HeaterMicrowaveRange Building Area Total 2323 Cooling Central Air Cooling YN Yes Fireplace Yn No Flooring CarpetLuxury Vinyl Furnished Unfurnished Heating Central Heating YN Yes Interior Features Ceiling Fan(s)Eating Space In KitchenOpen FloorplanPrimary Bedroom Main FloorSplit BedroomThermostat Laundry Features Laundry Room Levels One Sewer Public Sewer Stories Total 1 Water Source Public

Property Features

Additional Lease Restrictions Buyer to verify. Approval Process Buyer to verify. Association Approval Required Yn No Association Fee 178 Association Fee Frequency Quarterly Association Fee Monthly Amount 59.33 Association Fee Requirement Required Association Yn Yes Cdd Yn No Down Payment Resource Yes Flood Zone Code x Garage Yn Yes Homestead Yn No Lease Considered YN Yes Lease Restrictions YN No Listing Terms CashConventionalFHAUSDA LoanVA Loan Minimum Lease No Minimum New Construction Yn No Ownership Fee Simple Pets Allowed Cats OKDogs OK Property Sub Type Single Family Residence Realtor Info As-IsSign Required Remarks Under contract-accepting backup offers. Senior Community Yn No Special Listing Conditions None Tax Annual Amount 4343 Total Annual Fees 712 Total Monthly Fees 59.33 Utilities BB/HS Internet AvailableCable AvailableElectricity AvailablePhone Available Yrs Of Owner Prior To Leasing Re No


Listing information © 2026 My Florida Regional MLS DBA Stellar MLS..
Listing provided courtesy of KELLER WILLIAMS REALTY SMART: 863-577-1234.



© 2026 My Florida Regional MLS DBA Stellar MLS. All rights reserved. All listings displayed pursuant to IDX. All listing information is deemed reliable but not guaranteed and should be independently verified through personal inspection by appropriate professionals. Listings displayed on this website may be subject to prior sale or removal from sale; availability of any listing should always be independently verified. Listing information is provided for consumers personal, non-commercial use, solely to identify potential properties for potential purchase; all other use is strictly prohibited and may violate relevant federal and state law. Data last updated 2026-03-11T10:51:30.343.
 
https://bt-photos.global.ssl.fastly.net/mfr/orig_boomver_1_L4957341-2.jpg https://bt-photos.global.ssl.fastly.net/mfr/orig_boomver_1_L4957341-2.jpg https://bt-photos.global.ssl.fastly.net/mfr/orig_boomver_1_L4957341-2.jpg
Logo
World Impact Real Estate
4507 Furling Lane, Suite #203
Destin FL, 32541