Skip To Content

1540 S Washington Avenue

Titusville, FL 32780
  • $945,000
  • STATUS: Active
  • ON SITE: 40 Days
  • MLS #: 1064197
UPDATED: 69 min ago
$945,000
  • 0
    BEDS
  • 0.29
    ACRES
  • 0
    BATHS
  • 0
    1/2 BATHS
  • 3,871
    SQFT
  • $244
    $/SQFT
Neighborhood:
Type:
Commercial
Built:
1961
County:

School Ratings & Info

Description

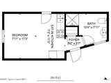
Rare opportunity to purchase Mid-Century Modern roadside motor inn in historic Titusville - Gateway between Nature & Space! Wade's Motor Inn offers 11 rooms of efficiency style plus manager's apartment with private courtyard. Each guest room features tile flooring, kitchenette, TV, Queen sized bed & private ensuite. Guest suites in 3 floorplans - 225sqft (7 units), 265sqft (3 units) & 257sqft (1 unit.) Manager's apartment is over 600sqft with private door into office. Courtyard is appx 10x32 - privacy fenced & includes covered patio with brick pavers. Porte cochere retains the vintage vibe for guests to park out of the elements while checking in. Gathering under the 12x14 pergola is made special with cafe lights & tropical landscaping. 2 additional storage buildings included. Full onsite laundry room with coin operated machines. Motor Inn is well placed for local guests & travelers. Close proximity to rocket launches & Playalinda Beach .. short drive to cruise ports & amusement parks.

Monthly Payment Calculator



© 2026 Space Coast Association of REALTORS®, Inc. The data relating to real estate for sale or lease on this web site comes in part from the Brevard County Broker Reciprocity Database. Real estate listings held by brokerage firms other than World Impact Real Estate are marked with the IDX logo and detailed information about them includes the name of the listing broker. Information is deemed reliable but is not guaranteed accurate by the MLS or World Impact Real Estate.IDX information is provided exclusively for consumers' personal, non-commercial use and may not be used for any purpose other than to identify prospective properties consumers may be interested in purchasing. Data last updated: 2026-01-22T14:09:11.883.
www.searchingfloridaproperties.com/homes/171324242
Print Image

1540 S Washington Avenue Titusville, FL 32780

  • Price: $945,000
  • Status: Active
  • On Site: 40 Days
  • Updated: 69 min ago
  • MLS #: 1064197
0
Beds
0
Baths
0
½ Baths
0.29
Acres
3,871
SQFT
$244
$/SQFT
1961
Built
Neighborhood:
Riverside Park Sec A
County:
Brevard
Area:
103 - Titusville Garden - SR50
Property Description
Rare opportunity to purchase Mid-Century Modern roadside motor inn in historic Titusville - Gateway between Nature & Space! Wade's Motor Inn offers 11 rooms of efficiency style plus manager's apartment with private courtyard. Each guest room features tile flooring, kitchenette, TV, Queen sized bed & private ensuite. Guest suites in 3 floorplans - 225sqft (7 units), 265sqft (3 units) & 257sqft (1 unit.) Manager's apartment is over 600sqft with private door into office. Courtyard is appx 10x32 - privacy fenced & includes covered patio with brick pavers. Porte cochere retains the vintage vibe for guests to park out of the elements while checking in. Gathering under the 12x14 pergola is made special with cafe lights & tropical landscaping. 2 additional storage buildings included. Full onsite laundry room with coin operated machines. Motor Inn is well placed for local guests & travelers. Close proximity to rocket launches & Playalinda Beach .. short drive to cruise ports & amusement parks.
Exterior Features

Attached Garage YN No Construction Materials BlockConcrete Fencing Privacy Lot Features ClearedCorner Lot Parking Features Parking Lot Road Frontage Type City StreetHighway Roof Membrane Waterfront Features [] Waterfront YN No

Interior Features

Cooling Wall Unit(s) Cooling YN Yes Flooring Tile Heating Electric Heating YN Yes Stories Total 1 Unit1 Details Baths Total 12 Unit1 Furnished Furnished Unit1 Sq Ft 3871

Property Features

Accessibility Features [] Additional Parcels YN No Association Amenities [] Association YN No Building Features StorageLaundryManager on PremiseSeparate Office Area Building Name Wade's Motor Inn Current Use Hotel/Motel Electric [] Existing Lease Type [] Green Energy Efficient [] Green Water Conservation [] Gross Income 200779 Land Lease YN No Listing Terms CashConventional Manager Expense 28800 New Taxes Expense 5339 Operating Expense 39174 Operating Expense Includes Cable TVManagerUtilitiesWater/Sewer Owner Pays All Utilities Property Sub Type Hotel/Motel Security Features Closed Circuit Camera(s) Senior Community YN No Sewer Public Sewer Special Listing Conditions Standard Tax Annual Amount 5505.12 Tax Legal Description RIVERSIDE PARK SEC A LOT 32 EX HWY R/W & ALL LOTS 7273 Tax Year 2024 Tenant Pays None Utilities Cable ConnectedNatural Gas AvailableSewer Connected Water Source Public

Listing provided courtesy of Coldwell Banker Paradise: (321) 222-9449.
© 2026 Space Coast Association of REALTORS®, Inc. All Rights Reserved.


© 2026 Space Coast Association of REALTORS®, Inc. The data relating to real estate for sale or lease on this web site comes in part from the Brevard County Broker Reciprocity Database. Real estate listings held by brokerage firms other than World Impact Real Estate are marked with the IDX logo and detailed information about them includes the name of the listing broker. Information is deemed reliable but is not guaranteed accurate by the MLS or World Impact Real Estate.IDX information is provided exclusively for consumers' personal, non-commercial use and may not be used for any purpose other than to identify prospective properties consumers may be interested in purchasing. Data last updated: 2026-01-22T14:09:11.883.
 
https://bt-photos.global.ssl.fastly.net/spacecoast/orig_boomver_1_1064197-2.jpg https://bt-photos.global.ssl.fastly.net/spacecoast/orig_boomver_1_1064197-2.jpg https://bt-photos.global.ssl.fastly.net/spacecoast/orig_boomver_1_1064197-2.jpg
Logo
World Impact Real Estate
4507 Furling Lane, Suite #203
Destin FL, 32541